




Plot for sale
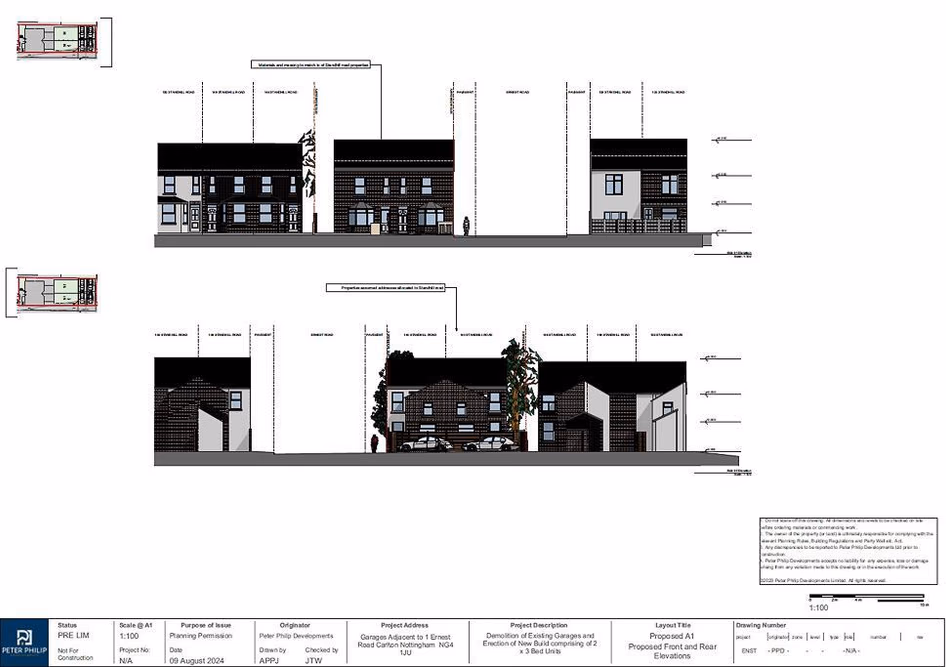
Guide Price - £150,000 - £170,000 | Planning Permission Granted | Planning Reference: 2024/0549 Gedling Borough Council | Two Three Bedroom Properties | Popular Location | Close to Local Amenities | Currently a Block of Garages | We are thrilled to present an outstanding development oppo...
Plot for sale
Description
Guide Price - £150,000 - £170,000 | Planning Permission Granted | Planning Reference: 2024/0549 Gedling Borough Council | Two Three Bedroom Properties | Popular Location | Close to Local Amenities | Currently a Block of Garages | We are thrilled to present an outstanding development oppo...
Contact Agent
Smart Picks — Professionals Relevant to This Land
Based on this property's key features, here are the specialists you may want to consult as part of your due diligence: land agents, rural solicitors, planning consultants and rics surveyors.

Land Agents
Essential for navigating the land market, finding buyers, and securing the best price.

Rural Solicitors
Significant investment (£150K+) requires legal expertise for conveyancing, title checks, and transaction security.

Planning Consultants
Planning-sensitive site needs expert guidance for applications and development strategy.

RICS Surveyors
Prime or productive land requires professional valuation to ensure fair market value.
Location
Ernest Road